Stöbern Sie im Archiv und in alten Zeiten!


Bebauungsplan Schwarzwaldweg/Wiehenweg

 

Der als Bebauungsplan Nr. 1 der ehemaligen Gemeinde Spexard übergeleitete Durchführungsplan aus dem Jahre 1959 setzt zwischen der Bruder-Konrad-Straße und der Piusstraße in Verlängerung des Schwarzwaldweges ein reines Wohngebiet für eine ein- bis zweigeschossige Wohnbebauung in offener Bauweise fest. Weder die Erschließung noch die Wohnbebauung wurden bisher realisiert.
Die Freifläche soll nunmehr einer Bebauung zugeführt werden. Zwischenzeitlich geführte Gespräche mit dem Bauinteressenten haben zu dem als Anlage beigefügten Gestaltungskonzept geführt. Vorgesehen ist eine Wohnbebauung mit maximal zwei Vollgeschossen in offener Bauweise.

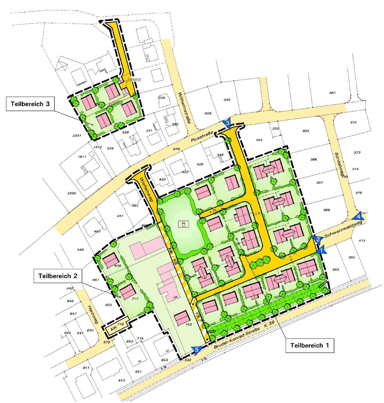
Das Plangebiet umfasst drei Teilbereiche. Den zentralen Teil des Bebauungsplangebietes bildet der östlich des Wiehenweges gelegene Teilbereich 1. Dieser soll als Allgemeines Wohngebiet (WA) ausgewiesen werden. Die Erschließung erfolgt von der Piusstraße und vom Schwarzwaldweg her. Im Nordwesten ist ein größerer Kinderspielplatz vorgesehen, der auch die umliegenden Wohnbereiche mit versorgen soll. Der im Bebauungsplan Nr. 1/5 (Spexard) festgesetzte private Spielbereich am Harzweg und der durch den Bebauungsplan Nr. 1/1 (Spexard) gesicherte Spielplatz an der Wilhelmstraße sollen aufgegeben und zugunsten dieses größeren, zentraler gelegenen Spielplatzes zusammenfasst werden. Die beiden aufgegebenen Standorte sollen stattdessen einer Wohnbebauung zugeführt werden (Teilbereiche 2 und 3).

 
So sehen die Planer das neue Baugebiet.

Das Baugrundstück auf der ursprünglich privaten Spielfläche im Teilbereich 2 (Flurstück 717) soll dabei vom Harzweg aus über einen Anliegerweg erschlossen werden. Darüber hinaus sieht das Gestaltungskonzept im Teilbereich 2 für weitere zwei Grundstücke Baumöglichkeiten vor, die ihre Zufahrt jedoch vom Wiehenweg aus erhalten sollen. Der Wiehenweg soll neben seiner Erschließungsfunktion für die westlich angrenzenden Grundstücke auch als Fuß- und Radweg dienen und eine gute Erreichbarkeit des geplanten Kinderspielplatzes aus den umliegenden Wohnquartieren sicherstellen.

Der bestehende Spielplatz an der Wilhelmstraße hat nur einen Zugang von Norden her, so dass dieser von den südlichen Wohngebieten nur über einen Umweg zu erreichen ist; die Bemühungen, einen zusätzlichen Zugang von der Piusstraße aus herzustellen, hatten keinen Erfolg. Nachdem mit dem geplanten Spielplatz am Wiehenweg ein Ersatz in zentralerer Lage gefunden wurde, soll der Spielplatz an der Wilhelmstraße ebenfalls zugunsten von Wohnbebauung aufgegeben werden. Der Teilbereich 3 ermöglicht im Bereich des Spielplatzes drei Bauplätze sowie einen weiteren für eine rückwärtige Bebauung des Grundstücks Wilhelmstraße 64. (Quelle: Stadt Gütersloh)



Letzte Änderung: 22. November 2005